System naścienny DRE

Wymiary
60, 70, 80, 90, 100cm i system podwójny 120, 140, 160, 180, 200cm
Konstrukcja
system montowany bezpośrednio na ścianę lub z użycieciem tunelu regulowanego
Wypełnienie
wysokiej jakości płyta MDF
Wykończenie
karnisz wykończony identycznie jak drzwi
DRE

System montowany bezpośrednio na ścianę lub z użycieciem tunelu regulowanego [...]

System przesuwny DRE, stosowany jest jako drzwi wewnątrzlokalowe, bezprzylgowe, jedno lub dwuskrzydłowe, w kolekcjach DRE-Cell oraz Natura przedstawionych w katalogu, z wyjątkiem kolekcji: ENTER, ENTER natura, SOLID, VETRO, szklane GALLA, LACK, drzwi przeciwpożarowe El30.

Komplet systemu przesuwnego (naściennego) zawiera:
belkę odbojową, prowadnicę (LEON SN 150, 180, 200) z okuciami, listwę dystansową oraz maskownicę. W przypadku systemu montowanego na tunelu regulowanym w komplecie znajdują się 2 dodatkowe listwy dystansowe. W przypadku systemu z zastosowaniem zamka hakowego w belce odbojowej wyfrezowane jest gniazdo pod zaczep.

Skrzydło drzwiowe bezprzylgowe DRE o wymiarach:
Drzwi pojedyncze: „60”, „70”, „80”, „90”, „100”
Drzwi podwójne: „120”, „140”, „160”, „180”, „200”

Oferujemy:
NS - system montowany bezpośrednio na ścianę
NT - system montowany z użyciem tunelu regulowanego

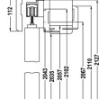
Przekrój drzwi:

Wysokość skrzydła bezprzylgowego - 2043 mm

System przesuwny pojedynczy
symbol "60" "70" "80" "90" "100"
A 600 700 800 900 1000
B 644 744 844 944 1044
C 664 764 864 964 1064
D 750 850 950 1050 1150
S 644 744 844 944 1044
System przesuwny podwójny
symbol "120" "140" "160" "180"
"200"
A 1200
1400
1600
1800
2000
B 1244
1444
1644
1844
2044
C 1264
1464
1664
1864
2064
D 1350
1550
1750
1950
2150
S** 644
744
844
944
1044

** szerokość jednego skrzydła

Uchwyty:

Wymiary maskownicy:

Wymiar
drzwi [mm]
Maskownica Prowadnica
Mz Mw Pa
644, 744 1602 1570 1500
844 1902 1870 1800
944 2102 2070 2000
1044 2150 2118 2000

Wysokość skrzydła bezprzylgowego - 2043 mm